Pystysaumojen kapasiteetti

Pystysaumaliitos vaijerilenkeillä (kuva 51)

Vaijerilenkkiliitos on Suomessa betonielementtikohteiden pystysaumaliitoksissa yleisin liitostapa. Vaijerilenkkiliitosten rakenteellisen toiminnan edellytykset (seinä paksuus, sauman geometria, lisäraudoitukset jne.), käyttöalueen rajoituksen ja liitoksen kestävyydet tulee aina varmistaa vaijerilenkkien valmistajan voimassa olevan käyttöohjeen mukaan. Pystysauman suuntaisen leikkauskestävyyden lisäksi tulee tarvittaessa huomioida liitoksen vetokestävyys, poikittainen leikkauskestävyys, vetokestävyys ja edellä mainittujen yhteisvaikutus. Huomioitava, et vaijerilenkit toimivat poikittaissuunnassa nivelellisenä liitoksena (eivät siirrä taivutusmomenttia).

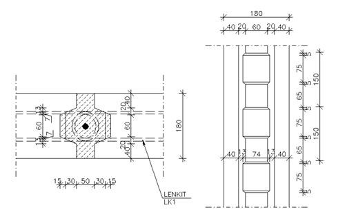
Kuva 51.  Jäykistävät seinät, betonivaarnasaumat, vaijerilenkki

Harjateräslenkkejä (sileällä betonisaumalla tai betonivaarnasaumalla) käytetään pystysaumoissa lähinnä raskaasti kuormitetuissa liitoksissa, joissa vaijerilenkin kestävyys ei ole riittävä tai jos on tarvetta saada aikaan taivutusmomenttia siirtävä liitos. Kovia lenkkejä käytettäessä täytyy suunnittelussa huomioida mm. lenkkien riittävä limitys, lenkkien porrastus ja S-pistekolojen riittävä leveys elementin siirtämiseksi sivusuunnassa.

Sauman kestävyyden mitoitusperiaate on esitetty alhaalla.

Kuva 50. Kantavien ja jäykistävien väliseinien liitos (betonivaarna + lenkit)
Kuva 52. Kantavien väliseinien liitos (betonivaarna)

Harjateräslenkeillä tehtävän pystysauman kapasiteetti voidaan laskea Eurokoodi 2:n kohdan 6.2.5 mukaan jos lenkkien limitys on riittävä. Eri aikoina valettujen betoniosien välisessä rajapinnassa vaikuttavan leikkausjännityksen edellytetään täyttävän ehdon:

Yhtälö 15

vEdi     on rajapinnassa vaikuttavan leikkausjännityksen mitoitusarvo, joka lasketaan kaavalla

Yhtälö 16

missä

β    on sauman betonin jännitysresultantin suhde koko poikkileikkauksen jännitysresultanttiin (laskettuna samassa kohdassa)
VEd    on leikkausvoiman mitoitusarvo
z    on koko poikkileikkauksen sisäinen momenttivarsi
bi    on rajapinnan leveys (ks. kuva 48)

Kuva 48. Rajapinnan leveys b

vRdi     on rajapinnan leikkauskestävyyden mitoitusarvo. Se lasketaan kaavasta

Yhtälö 17

missä

Taulukko 5

fctd     on vetolujuuden mitoitusarvo
σn     on rajapintaan kohdistuva, sen leikkausvoiman kanssa samanaikaisesta ulkoisesta normaalivoimasta aiheutuva pienin mahdollinen normaalijännitys, puristus positiivisena ja σn < 0,6 fcd sekä veto negatiivisena. Kun σn on vetoa, tulolle c fctd käytetään arvoa 0.
ρ    on As/Ai
As    on rajapinnan läpi kulkevan raudoituksen poikkileikkausala, joka on riittävästi ankkuroitu rajapinnan kummallekin puolelle (teräslenkkien tapauksessa varmistettava myös teräslenkkien riittävä limitys)
Ai    on rajapinnan pinta-ala
α    määritellään kuvassa 49, ja se rajoitetaan välille 45° ≤ α ≤ 90°
ν    on lujuuden pienennyskerroi ν=0,6[1-f_ck/250]n        (fck [MPa])
Jos pystysauma voi halkeilla merkittävästi, kertoimen c arvo on 0 sileissä ja karheissa saumoissa ja
0,5 vaarnatuissa saumoissa.

Kuva 49. Betonivaarnasauman kapasiteetin laskennassa käytettävien kaavojen merkinnät

Pystysaumaliitos hitsattavilla teräsosilla

Pystysaumaliitos, jossa elementit liitetään toisiinsa työmaalla hitsattavilla teräosilla. Sauman kestävyyden mitoitus teräsosien suunnitteluohjeen mukaisesti.