Hissikuilut

Perinteisesti elementtihissikuilut on koottu erillisistä seinäelementeistä. Nykyisin markkinoilla on useampia valmistajia, joiden tuotevalikoimassa on kerroksen korkuisia kuiluelementtejä. Kasaamalla koko hissikuilu valmiista kuiluelementeistä, säästetään työmaalla aikaa asennustöissä perinteiseen rakennustapaan verrattuna. Aikataulusäästö on vielä suurempi verrattuna paikallavalettavaan hissikuiluun.

Hissikuilu

Hissikuilut kootaan kerroksen korkuisista elementeistä. Hissikuilun pohjalle tulee kuppielementti, jonka päälle kuiluelementit asennetaan. Yläpäähän tulee myös kuppielementti, jonka korkeus vaihtelee hissitoimittajan mukaan. Elementit voivat sisältää tarvittavat varusteet ja LVIS-installaatiot hissin asennusta varten.

Hissikuiluelementtien mittasuositus

Asuinkerrostaloissa käytetään usein vakiokokoisia ja -tyyppisiä hissejä. Siksi asuinkerrostaloja varten on kehitetty vakioitu kuilutyyppi. Kuiluelementtien lopullisen suunnittelun tekee valmistajan suunnittelija. Rakenteellinen suunnittelu rajoittuu kuilun mittojen valintaan ja liittyvien rakenneosien liittymien suunnitteluun. Hissikuilun mittoja valittaessa noudatetaan seuraavia perusperiaatteita:

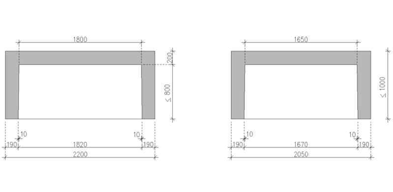
  • Kuilun vakiosisämitat ovat 1650x1800mm.
  • Kuiluelementtien suositeltava seinämävahvuus on 150mm tai 200mm.
  • Maksimi kerroskorkeus kuiluelementeille on 3m.

Kuvassa 9.1 on esitetty vakiomittaiset kuiluelementit. Kuiluelementteihin voidaan tarvittaessa lisätä ovipalkki ja oven pieli. Ovipalkin korkeus ja pielen leveys valitaan hissityypin mukaan.

Mikäli yksi hissikuilun seinistä joudutaan tekemään erillisestä elementistä, niin kuilussa voidaan käyttää L-muotoista elementtiä. Tällaisia tapauksia voivat olla esimerkiksi, jos hissin sijoitus on ulkoseinällä, tai jos väliseinä tulee tehdä jatkuvana. Kuvassa 9.2 on esitetty L-muotoisen elementin vakiomitoitus.


Kuva 9.1
Kuva 9.2

Hissikuilun pohjan kuppielementin vakiomitoitus on esitetty kuvassa 9.3. Elementissä käytetään vesitiivistä betonia. Tarvittaessa elementtitoimitukseen voidaan lisätä pohjan RST-kaukalo. Elementin korkeus ja kaukalon syvyys valitaan käytettävän hissityypin mukaan.

Hissikuilun yläpään kuppielementin vakiomitoitus on esitetty kuvassa 9.4. Elementin korkeus valitaan käytettävän hissityypin mukaan. Elementti varustellaan hissityypin mukaisilla varusteosilla.


Kuva 9.3.
Kuva 9.4